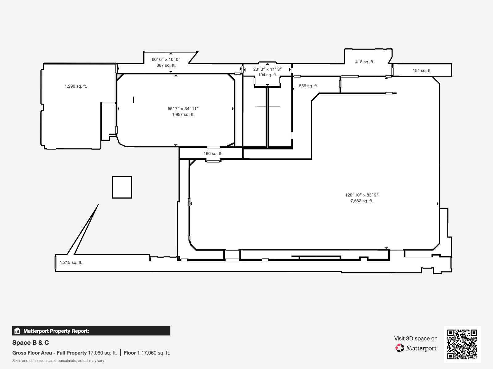
Space B & C
17,000SF Clear Span Exhibit, Restaurant, Retail, or Experiential BeltLine Frontage
Space B & C